Добро пожаловать на http://vipplan.ru

Випплан Михайловка - это тысячи проектов домов в нашем каталоге!

Вы всегда сможете найти для себя проект дома вашей мечты! Даже если этого не случилось, мы готовы в любую минуту предложить проект индивидуального дома.

Забыли пароль?
Вы еще не регистрировались?

Перейдите по ссылке ниже на страницу регистрации.

Регистрация...

Внимание!!!

В проектную документацию могут быть внесены изменения любой сложности, в соответствии в Вашими пожеланиями!

Полезные статьи

Выбор участка для строительства дома

Если вы решили приобрести участок земли и построить на нем дом или дачу. То данная статья специально для вас. А так же мы поможем вам в выборе проекта для выбранного вами участка....

Виды бассейнов

В наше время, строительство бассейна на территории своего участка, не такая уж и роскошь. Выбор видов и стилей бассейна, на сегодняшний день, очень большой....

Проекты домов и коттеджей > Каталог проектов домов > Проект индивидуального одноэтажного жилого дома с мансардой Vg1384

Проект индивидуального одноэтажного жилого дома с мансардой Vg1384

Проект индивидуального  одноэтажного  жилого дома с мансардой
Зарегистрируйтесь

Проект № Vg1384


Техническое описание
Общая площадь: 280.26 м2
Жилая площадь: 169.31 м2
Высота здания: 9.4 м
Размеры дома: 17.68м×16.38м
Кол-во комнат: 5
Цокольный этаж: нет
Гараж: нет
Мансарда: есть

Kонструкция
Фундамент: Монолитная ж/б плита
Перекрытия: Монолитные перекрытия
Материал стен: Газобетон

Архитектурный раздел
Конструктивный раздел
АР+КР - 72 000 (Со скидкой 20%)
Проект индивидуального одноэтажного жилого дома с мансардой с размерами здания 17,68 x 16,38 м. Наружная отделка здания – облицовочный кирпич, штукатурка. Фундамент – монолитная ж/б плита под всей площадью дома. Наружные стены – из газобетонного блока, утеплителя — базальтовой ваты, с облицовочным кирпичом и штукатуркой. Внутренние стены - из газобетонного блока. Перегородки – из рядового кирпича. Пол первого этажа - пол по монолитной плите. Межэтажное перекрытие — монолитная ж/б плита перекрытия. Крыша многоскатная. Кровля – керамическая черепица. Окна — металлопластиковые
Генплан застройки участка / Паспорт проекта 7000 руб / 10000 руб
Инженерный раздел (полный) 140000 руб
Смета на строительство 70000 руб
Теплотехнический расчет материалов стен Бесплатно
Стоимость проекта со незначительнми изменениями 83000 руб
Стоимость проекта со средними изменениями* 104000 руб
Стоимость проекта со значительными изменениями** 109600 руб

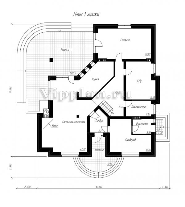
План первого этажа


Тамбур — 6,31 м2
Холл — 14,13 м2
Гостиная-столовая — 47,72 м2
Кухня — 15,54 м2
Спальня — 28,97 м2
С/у — 18,65 м2
Постирочная — 7,14 м2
Бойлерная — 4,94 м2
Гардероб — 18,89 м2

План мансардного этажа


Холл — 27,38 м2
Холл — 27,46 м2
Спальня — 48,28 м2
С/у — 8,76 м2
Спальня — 23,71 м2
Спальня — 35,94 м2
Проект индивидуального  одноэтажного  жилого дома с мансардой Проект индивидуального  одноэтажного  жилого дома с мансардой Проект индивидуального  одноэтажного  жилого дома с мансардой Проект индивидуального  одноэтажного  жилого дома с мансардой

Модификации проектов

Внесение изменений и привязка к участку строительства

В любой из проектов от компании VIPplan - Михайловка по вашему желанию могут быть внесены изменения в материалы стен, материалы наружной отделки дома, а также будет произведена адаптация проекта под конкретный регион строительства (с учетом грунтов региона, геологических особенностей вашего участка и местных климатических условий) - БЕСПЛАТНО !!! (кроме проектов со скидкой и проектов наших партнеров).

Любой из проектов, размещенных на сайте mihaylovka.vipplan.ru мы можем выполнить из требуемых вам строительных материалов: ячеистый бетон (газобетон, пеноблок), керамоблок, кирпич, шлакоблок, бетонный блок, дерево (брус, клееный брус), каркасная технология (деревянный каркас, металлокаркас (ЛСТК)).

Фасад дома и его наружную отделку так же возможно выполнить с применением различных облицовочных материалов: структурной штукатурки, (с утеплителем и без), сайдингом (пластиковый или металлосайдинг), фиброплитами, кирпича.

 
6 Избранные
проекты

Доставка проектов по России: Москва (Московская область), Санкт-Петербург (Ленинградская область), Краснодар, Ростов-на-Дону, Ставрополь, Сочи, Волгоград, Новосибирск, Белгород, Брянск, Воронеж, Саратов, Хабаровск, Астрахань, Нальчик, Владикавказ, Екатеринбург, Тюмень, Самара, Нижний Новгород, Казань, Пермь, Уфа, Челябинск, Красноярск, Ханты-Мансийск, Иркутск, Курган, Оренбург, Омск, Томск, Барнаул, Новокузнецк, Кемерово, Абакан, Чита, Якутск, Южно-Сахалинск, Петропавловск-Камчатский и страны ближнего зарубежья: Белоруссия, Украина, Казахстан